Valmistunut upea yksitasoinen erillistalo Espoon Nikunmäessä. (myyty)
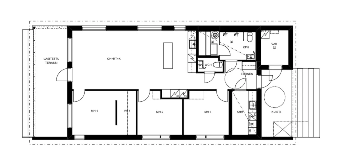
Tähän asuntoon pääset muuttamaan jo heinäkuussa. Kolmen makuuhuoneen käytännöllinen erillistalo omalla tontilla. Isot ikkunat ja korkea huonekorkeus tekevät asunnosta avaran ja viihtyisän. Kodin tilava kuisti luo asunnosta ihastuttavan ensivaikutelman, joka jatkuu myös kodin muissa ratkaisuissa. Eteisestä pääsee kätevästi kodinhoitohuoneeseen, jossa on paikka pyykkitornille, lavuaari ja runsaasti kaappitilaa. Eteisestä käynti myös pesuhuoneeseen. Pesuhuone ja sauna on sisutettu näyttävällä vaalealla haapapaneelilla ja tiloja yhdistää avartava lasiseinä. Kodissa myös erillinen wc. Master Bedroomiin luksusta tuo walk in closet. Yleiset tilat ovat valoisat keittiön, ruokatilan ja olohuoneen avautuessa lounaan ja luoteen suuntaisesti. Saareke ja tyylikkäästi upotetut kodinkoneet sekä aamiaiskaappi mahdollistavat toimivan ja käytännöllisen arjen tässä keittiössä. Kalusteet ovat Puustellin laadukasta tuotantoa.
Vesikiertoinen lattialämmitys takaa tasainen lämmön ja lämmönlähteenä Niben poistoilmalämpöpumppu.
Asunto myyty, kysy lisää muista kohteistamme pekka.karhumaa@bjorkin.fi tai 045-3588428



















